16/09/2024
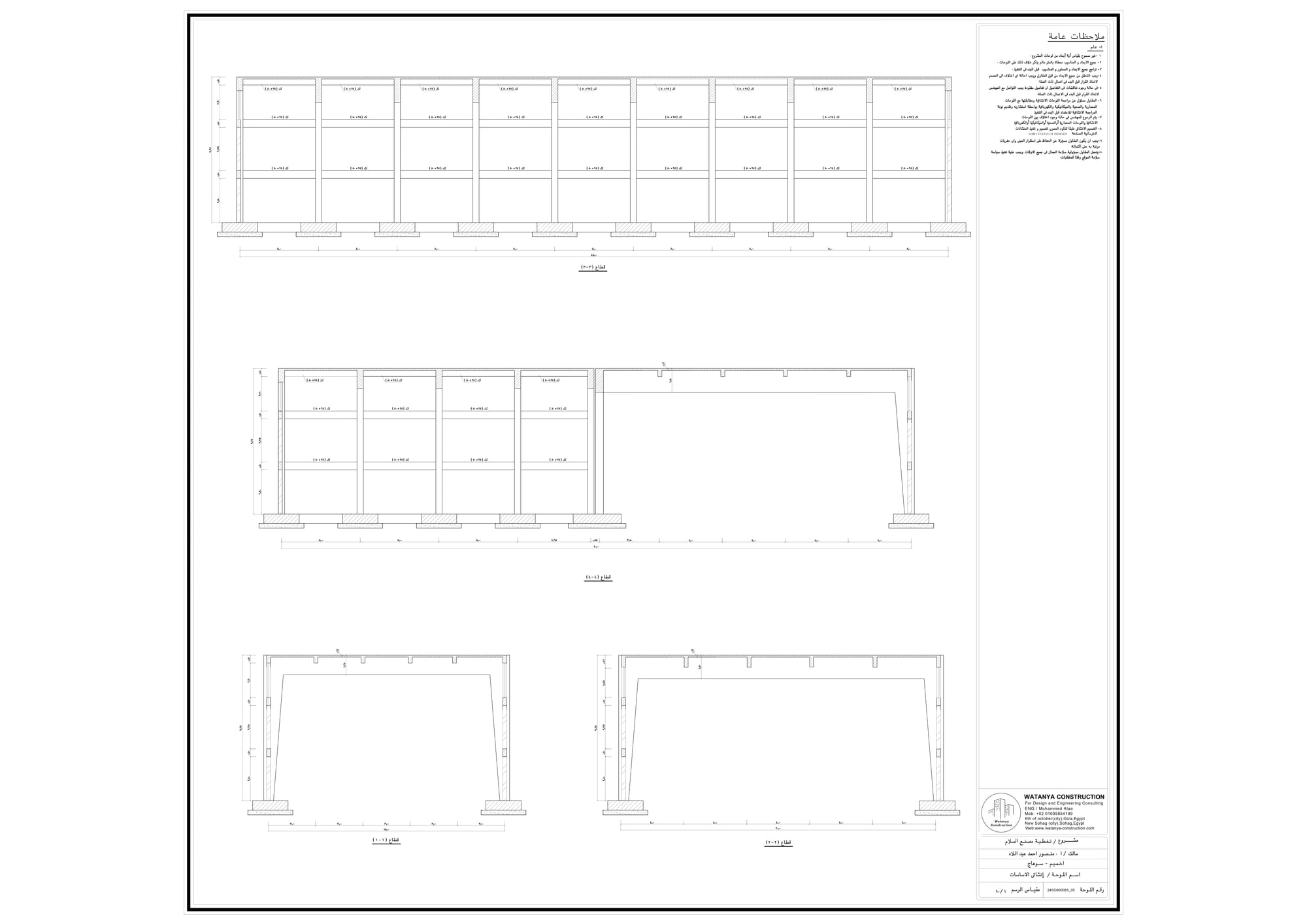
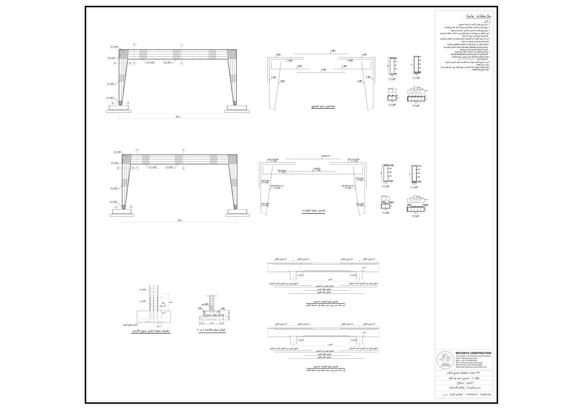
The project is located on an area of 1,200 square meters and was designed in accordance with the Egyptian Code for the Design and Implementation of Concrete Structures. It was also designed to cover the entire area at a height of 8 meters from the ground surface





