16/09/2024

DR / MOHAMED HOSNI PROJECT - GIRGA - SOHAG - EGYPT

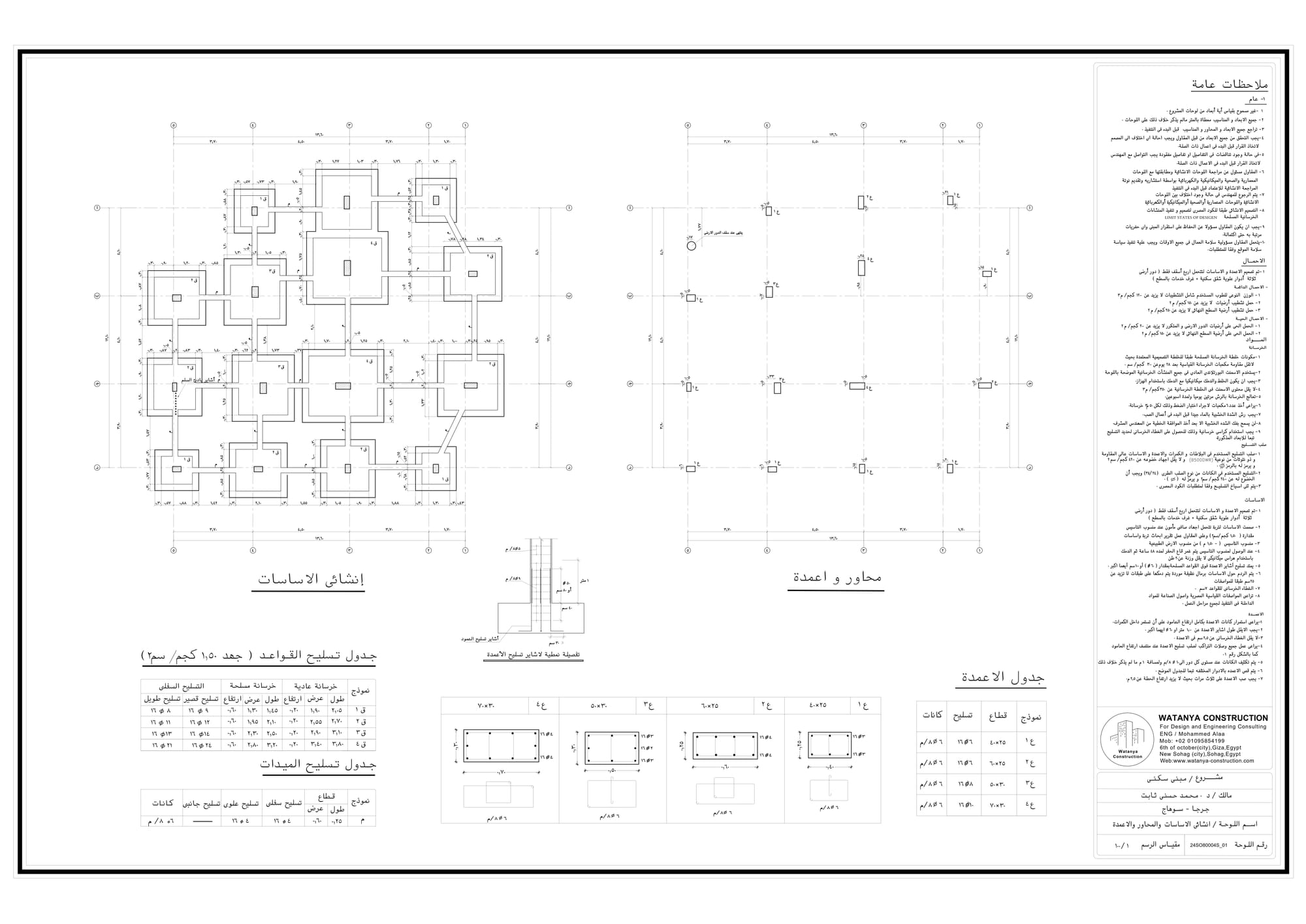
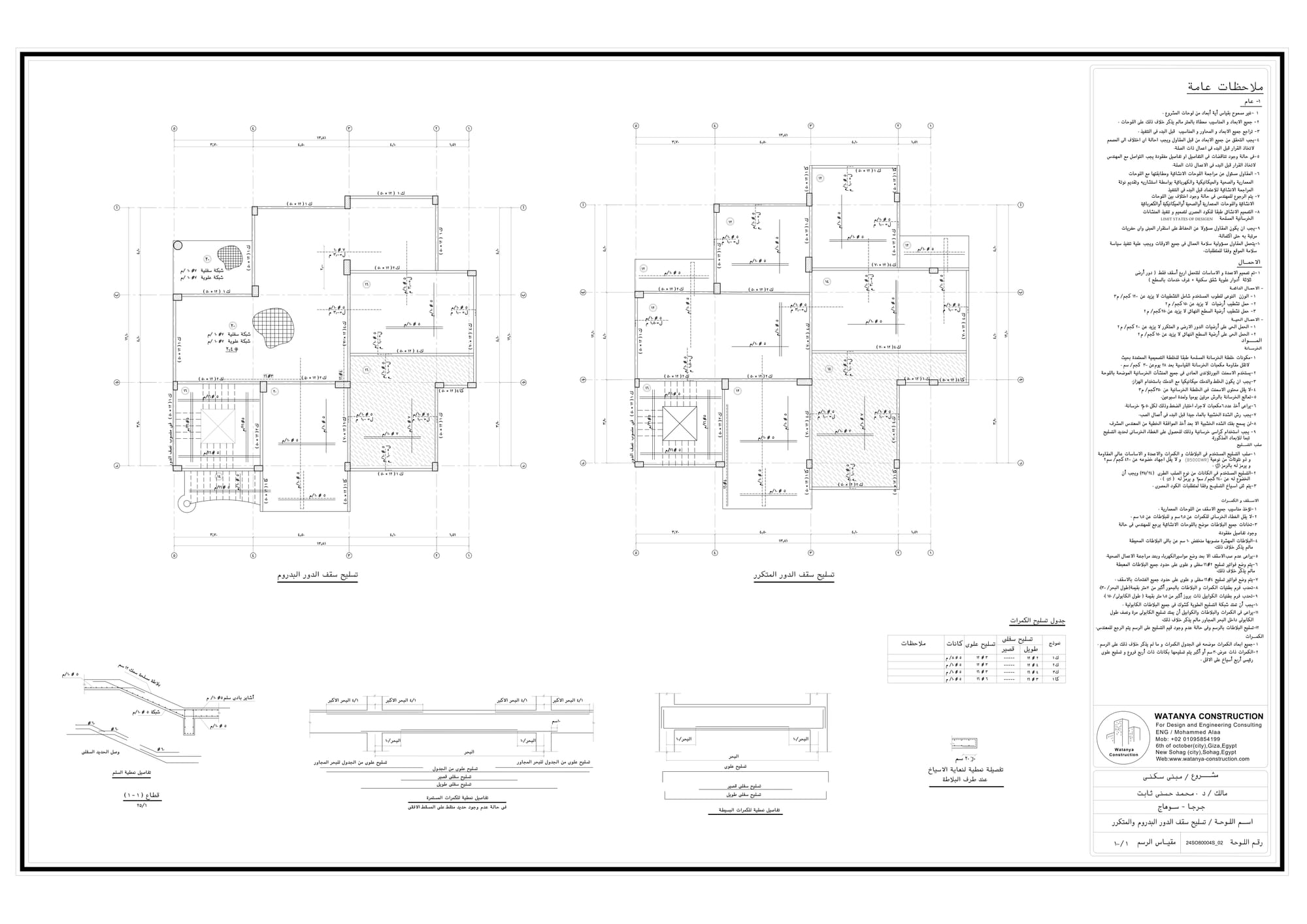
The building consists of one basement floor, the ground floor, the three typical floor, and finally the roof floor, and the total height of the roof above the ground surface is approximately 13.2 m

DR / MOHAMED HOSNI PROJECT - GIRGA - SOHAG - EGYPT
DR / MOHAMED HOSNI PROJECT - GIRGA - SOHAG - EGYPT
DR / MOHAMED HOSNI PROJECT - GIRGA - SOHAG - EGYPT
DR / MOHAMED HOSNI PROJECT - GIRGA - SOHAG - EGYPT
DR / MOHAMED HOSNI PROJECT - GIRGA - SOHAG - EGYPT
DR / MOHAMED HOSNI PROJECT - GIRGA - SOHAG - EGYPT
DR / MOHAMED HOSNI PROJECT - GIRGA - SOHAG - EGYPT
DR / MOHAMED HOSNI PROJECT - GIRGA - SOHAG - EGYPT