01/12/2023

RESIDENTIAL BUILDING PROJECT - SOHAG - EGYPT

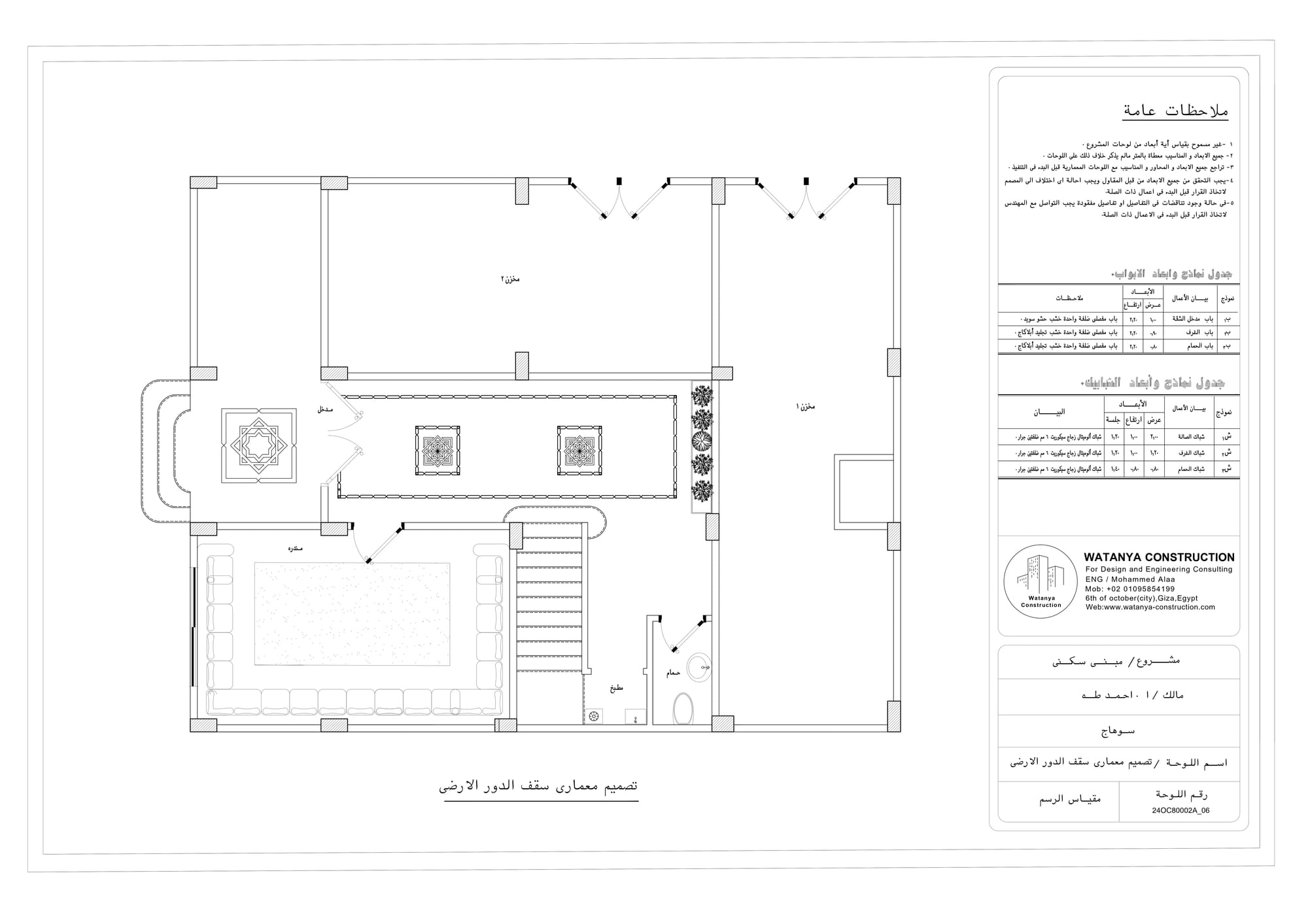
The project involves architectural modifications to a residential flat spanning 160 square meters, including the design of the apartment's interior furnishings and electrical distribution points

 RESIDENTIAL BUILDING PROJECT - SOHAG - EGYPT
 RESIDENTIAL BUILDING PROJECT - SOHAG - EGYPT
 RESIDENTIAL BUILDING PROJECT - SOHAG - EGYPT
 RESIDENTIAL BUILDING PROJECT - SOHAG - EGYPT
 RESIDENTIAL BUILDING PROJECT - SOHAG - EGYPT
 RESIDENTIAL BUILDING PROJECT - SOHAG - EGYPT
 RESIDENTIAL BUILDING PROJECT - SOHAG - EGYPT