16/09/2024

RESIDENTIAL BUILDING PROJECT - DAR AL SALAM - SOHAG - EGYPT

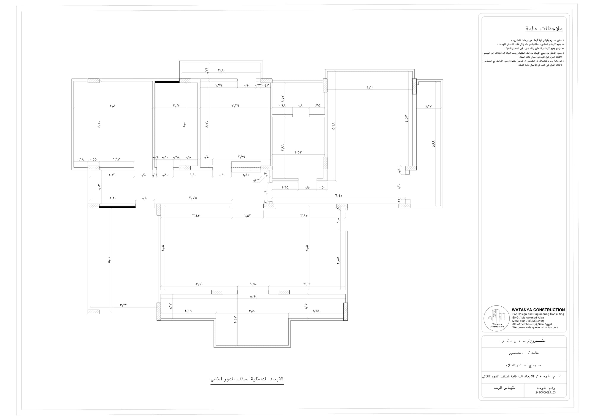
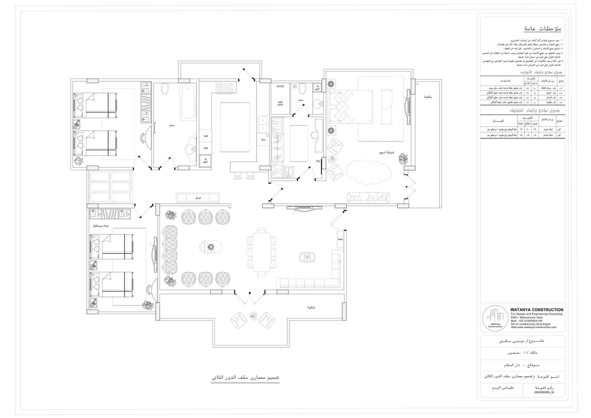
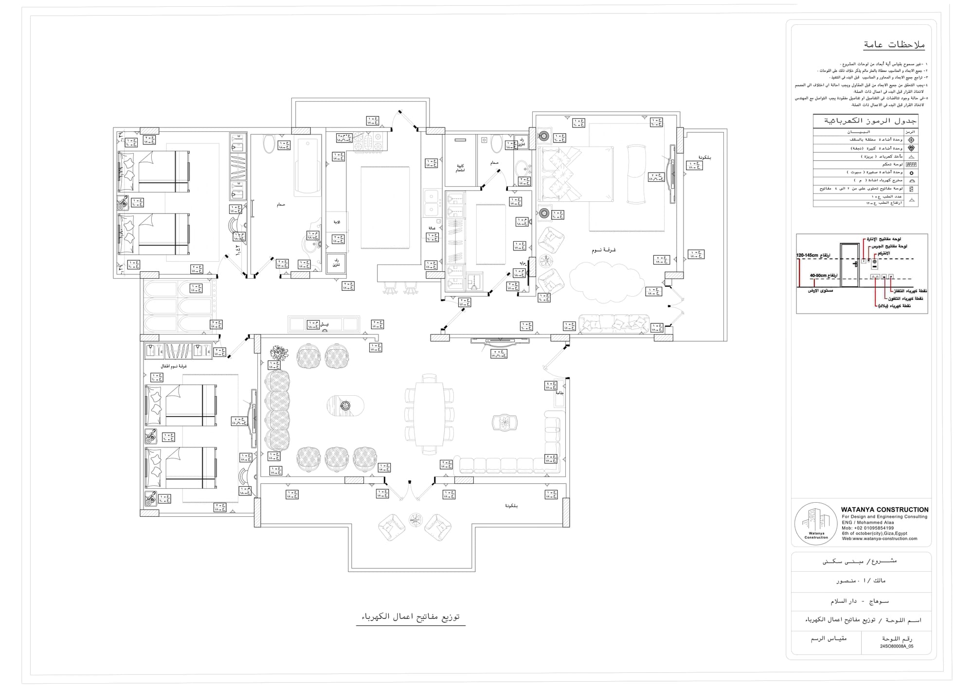
The project involves architectural modifications to a residential flat spanning 223 square meters, including the design of the apartment's interior furnishings and electrical distribution points

RESIDENTIAL BUILDING PROJECT - DAR  AL SALAM - SOHAG - EGYPT
RESIDENTIAL BUILDING PROJECT - DAR  AL SALAM - SOHAG - EGYPT
RESIDENTIAL BUILDING PROJECT - DAR  AL SALAM - SOHAG - EGYPT
RESIDENTIAL BUILDING PROJECT - DAR  AL SALAM - SOHAG - EGYPT
RESIDENTIAL BUILDING PROJECT - DAR  AL SALAM - SOHAG - EGYPT
RESIDENTIAL BUILDING PROJECT - DAR  AL SALAM - SOHAG - EGYPT
RESIDENTIAL BUILDING PROJECT - DAR  AL SALAM - SOHAG - EGYPT